駅まで徒歩5分!4DK→3LDKにリフォーム済み★1台無料
- 物件名
- 西本貸家
- 所在地
- 広島県広島市安佐南区八木9丁目4-21
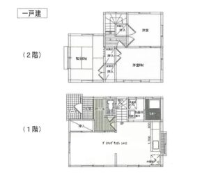
- 間取り
-
- 外観1
-
- 外観2
-
- 外観3
-
- 外観4
-
- 最寄駅・バス停
- 可部線 上八木 徒歩 6分
- 賃料
- 72,000円
- 敷金
- 2ヶ月
- 間取り詳細
- 3LDK LDK 14.0 和6 洋6 洋4.5
- 築年月
- 1984年9月
- 階数
- - / 2階
- 専有面積
- 72.87㎡
- 内覧可能日
- 2026/03/01
- 入居可能日
- 2026/03/01
- 物件種別
- 一戸建て
- 建物構造
- 木造
- 仲介手数料
- 1ヶ月分
- 契約期間
- 2年間
- 駐車場
- 付無料
- 保証会社
- 任意加入 全保連
- 初期費用(その他)
- 鍵交換代:11,000円(税込)/ホームアシスト24:16,500円(税込)
- 入居条件ほか
- 即入居可/礼金不要
- 室内
- バストイレ別/洗濯機置場(室内)/温水洗浄便座/洗面所独立/シャワー付洗面台/脱衣所/浴室に窓/洗面化粧台/ガスコンロ対応/キッチンに窓/プロパンガス/LDK12畳以上/クロゼット/押入
- 建物
- 内装リフォーム済/駅歩10分以内/駐車2台可/駐車場1台無料/TVインターホン
- 周辺環境
- ハニーズ高陽店(ショッピングセンター)まで3974m/アルゾ高陽深川店(スーパー)まで2916m/セブンイレブン広島八木店(コンビニ)まで428m/ディスカウントドラッグコスモス可部南店(ドラッグストア)まで1952m/広島市立城山北中学校(中学校)まで1217m/広島市立八木小学校(小学校)まで485m
- 投稿者: en-atte
